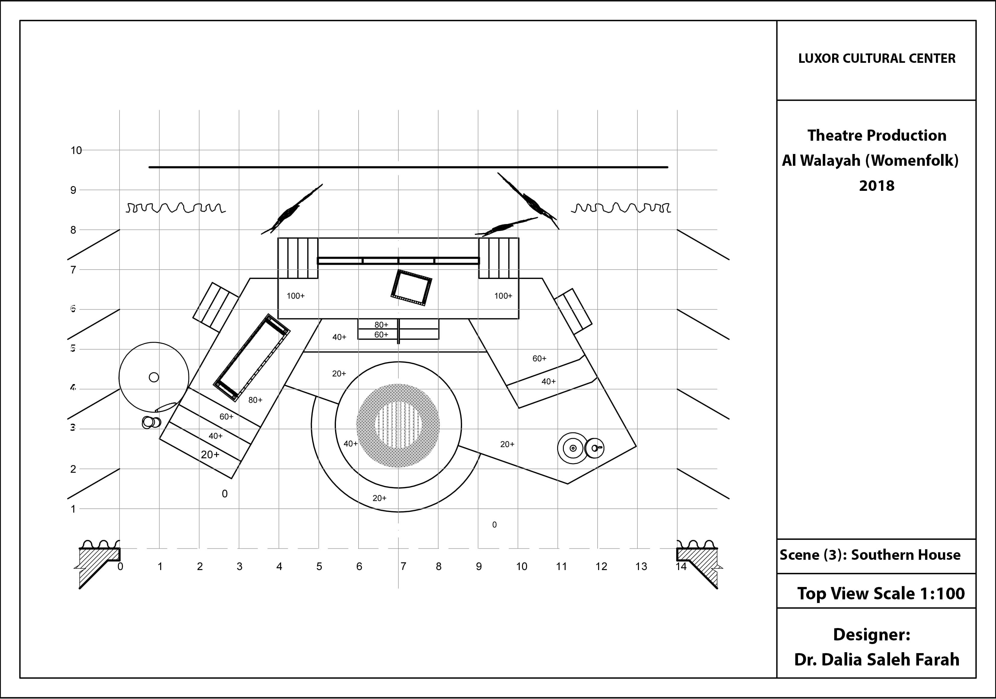
Womenfolk
Luxor Cultural Palace playhouse, Egypt (2018)
Playwright: Ossama El Banna
Director: Ashraf Al-Noby
Scenographer: Dalia Farah
Plot
The play is an Adaptation of “House of flesh” , a short story by Youssef Idris in a collection of short stories with the same title, released in 1971. It was also adapted into a short film in 2005.
When reading the title of the text at the beginning, it comes to mind that the house here is a place of comfort, privacy and a refuge for safety, but when reading the story it becomes clear that the house is a small room, all its inhabitants hear and see everything that goes on inside, the concept of privacy disappears, especially between the mother and the blind husband. The writer even described the eyes of the girls who watch the mother and husband on the wedding night as “eyes and ears flashlights.”
While reading the title also, the question revolves around how the house is made of flesh, and it becomes clear that it describes the condition of the bodies lumped in a place so small that it is impossible to distinguish between them, and the blind husband no longer distinguishes the old mother from her 3 young daughters.
“The girls are hungry, food is forbidden right, but hunger is more forbidden, there is never such a thing as forbidden hunger” in the words of the mother, about justifying her silence about the forbidden that occurs under the roof of her house. It is forbidden indeed, but the unsatisfied desire is more forbidden, the end justifies the means.
The writer did not give a clear ending to the story. The end only suggests that silence, denial and justification will continue on all sides. Because, in fact, nothing is mentioned in the events indicating a change in the characters of the text, and therefore their decisions will not change. By what logic is it expected that this tragedy will end as long as ignorance, poverty and deprivation dominate the house?
When adopted for theatre, playwright Usama El Banna in accordance with Director Ashraf Al Noby, added the character of (The Ghost Horsman), an old love of the mother when she was young who was a stranger, an outsider in the eyes of a tribal southern community. Oppressed by her brother the couple fails to marry and the brother ends up murdering the stranger. The spirit of the victimized lover haunts the murderer and witnesses in pain and silence the tragedy of the mother and her 3 daughters, as if he is a crucified savior.
The Play was performed By The National Theater Ensemble of Luxor Luxor Cultural Palace playhouse, Egypt. February 20 - March 5, 2018
And on the stage of Giza Cultural Center, during the 43rd Regional Teams Festival for the year 2018. June 11, 2018
Production Photos












Design Plates



















